La Ricarda
Antoni Bonet





























La Ricarda
Antoni Bonet
Residència senyorial de planta baixa i dos pisos en un sector, i de planta baixa, pis i terrat en un altre. La part coberta per teulada a dues vessants imita l'estructura bàsica de la masia catalana (esquema 2.I de Danés i Torras), en un esperit clarament noucentista. L'esperit decoratiu és en canvi més modernista, amb esgrafiats de temes florals emmarcant les finestres, angles i cornises. Ceràmica vidriada de colors forma la base dels balcons, laminats de ferro treballats amb formes corbes imiten forjats artesanals. Propietat de la família Bertrand, des de Manuel Bertrand, també propietari i creador de la Granja la Ricarda.
(Text: Inventari del Patrimoni Arquitectònic de Catalunya (IPAC)
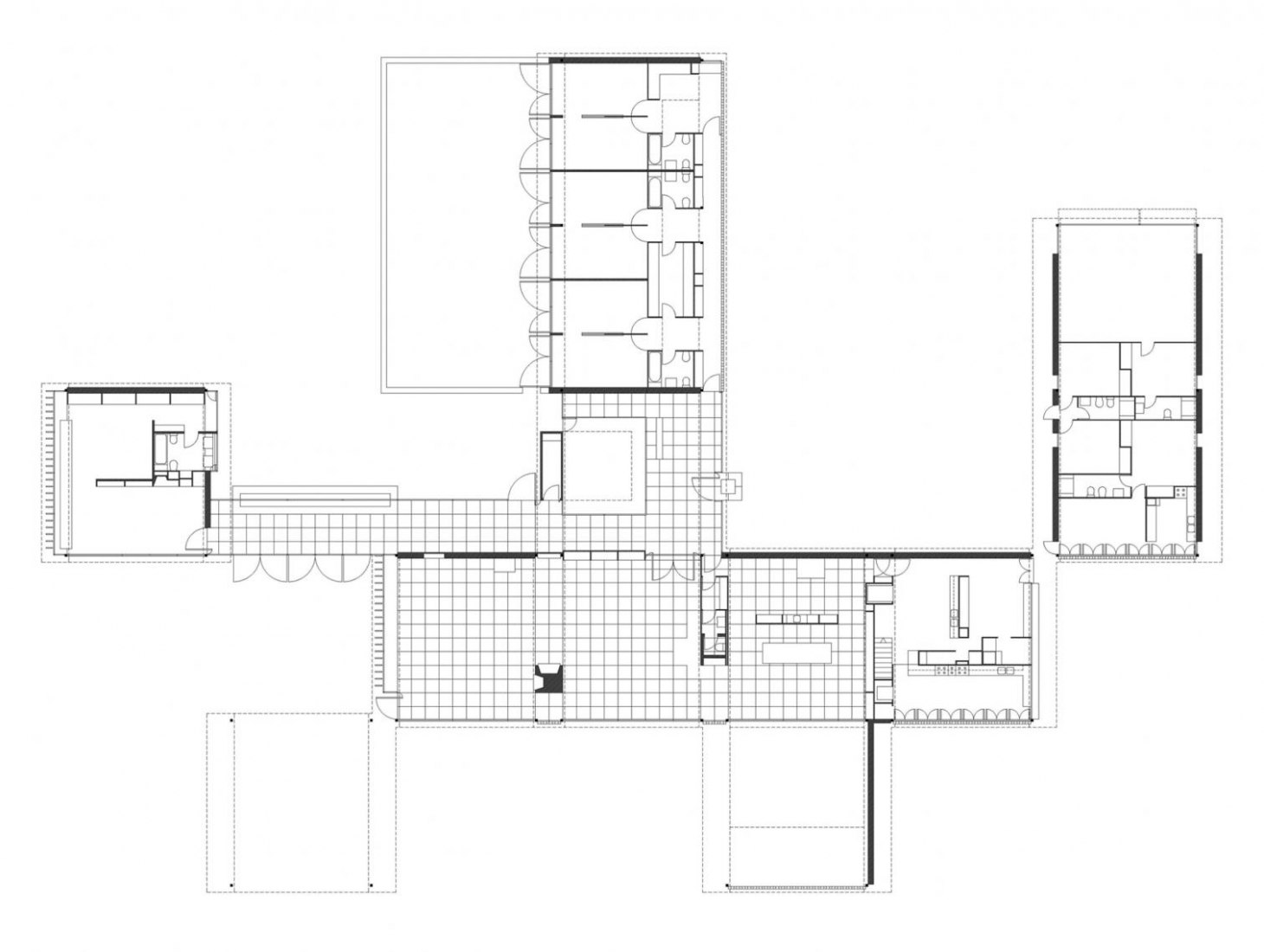
La casa és situada en un solar de grans dimensions cobert per una pineda, a la vora del mar. Bonet interpreta el lloc com un territori isòtrop, pautat per una malla quadrada de 8,80 x 8,80 metres que segueix exactament l’orientació del sol. Cada funció domèstica coincideix amb els mòduls d’aquesta malla, coberts per una volta ceràmica suportada per pilars metàl·lics de secció quadrada. Així, els tancaments gaudeixen d’una independència absoluta respecte de la coberta, de manera que els recorreguts de la casa, els espais exteriors, el mobiliari o els petits detalls són entesos com infinites variants de la pauta inicial.
(Text: Maurici Pla - Guia d'arquitectura moderna, 1880-2007)
La situación de la casa Gomis, en medio de un bosque frente del mar, muy cerca de Barcelona, resulta determinante en la elaboración del proyecto. La planta está formada por una serie de zonas independientes niños, padres, servicios, porches que se van conectando a la zona de día como si fuera un racimo. De este modo, en los espacios intermedios se pueden llenar de naturaleza y convivir con ella. El programa de necesidades es muy refinado, por ejemplo, el acceso cuenta con un patio en el que se han ubicado un estanque y una escultura; la zona de estar se puede adaptar para reuniones y conciertos; la zona de niños dispone de un patio cerrado para los juegos; el dormitorio de los padres constituye un núcleo independiente en el jardín; la relación con el exterior se tamiza a través de unos porches, etc. La estructura es otro elemento determinante del proyecto, que refleja el aprendizaje de Bonet como socio estudiante del GATCPAC. Está formada por una trama de pilares metálicos, de sección muy reducida, que definen un módulo uniforme de 9 x 9 metros. Sobre estos pilares descansa una cubierta formada por una serie de jácenas de hormigón armado que pautan la casa en una dirección, potenciando la relación con el mar, y una serie de bóvedas a la catalana como las que utilizaba Le Corbusier. La sección de las jácenas de hormigón incluye el canalón para desaguar las cubiertas. La estructura se superpone al programa con gran precisión.
(Text: Xavier Llobet i Ribeiro - DOCOMOMO Ibérico)
Photography: Francesc Català-Roca
Fons Fotogràfic Francesc Català-Roca / Arxiu Històric del COAC
Antoni Bonet
arquitecturacatalana.cat
(Related Projects)